我国对食品生产经营管理实行许可备案制度,企业从事食品生产、食品销售、餐饮服务等经营活动的,需经市场监管部门审批取得食品经营许可证后方可进行。
本文给大家详细介绍食品经营许可证申请的相关问题:
一、什么是食品经营许可证?
二、哪些企业要办食品经营许可证?
三、食品经营许可证经营项目类型有哪些?
四、办理食品经营许可证需要哪些资料?
五、办理食品经营许可证流程是怎么样的?
01
食品经营许可证,是指在国内取得营业执照等,从事食品销售和餐饮服务活动的合法主体,经市场监管部门审批后发给的食品经营许可凭证。
食品经营许可实行一地一证原则,即食品经营者在一个经营场所从事食品经营活动,应当取得一个食品经营许可证。
食品经营许可证发证日期为许可决定作出的日期,有效期为5年。
从2016年起,政府审批部门简化了对该类许可的审批流程,将此前食品卫生服务许可证、食品流通许可证及餐饮经营许可证三证合一,即现在的食品经营许可证。

02
1、食品销售经营者。例如:商场超市、便利店、食杂店、食品贸易商、食品自动售货销售商、网络食品销售商。
2、餐饮服务经营者。例如:①普通餐饮:特大型餐饮、大型餐饮、中型餐饮、小型餐饮、微型餐饮;②中央厨房;③集体用餐配送单位。
3、单位食堂。例如:学生食堂、托幼机构食堂、职工食堂、工地食堂、养老机构食堂等。
4、食品生产经营者。例如:糕点加工厂、肉制品加工厂等。
5、其他相关行业。

03
食品经营许可证的经营项目涵盖了从预包装食品到餐饮服务的广泛范围。具体包括但不限于以下范围:
1、预包装食品销售(含冷藏冷冻食品、不含冷藏冷冻食品);
2、散装食品销售(含冷藏冷冻食品、不含冷藏冷冻食品、含散装熟食销售、不含散装熟食销售);
3、特殊食品销售(保健食品、特殊医学用途配方食品、婴幼儿配方乳粉、其他婴幼儿配方食品);
4、其他类食品销售;
5、热食类食品制售;
6、冷食类食品制售;
7、生食类食品制售;
8、糕点类食品制售(含裱花蛋糕、不含裱花蛋糕);
9、自制饮品制售(含自酿酒制售、不含自酿酒制售、含现制现售生鲜乳饮品、不含现制现售生鲜乳饮品)。
2023年12月1日《食品经营许可和备案管理办法》正式开始实行,第四条明确规定以下情形不需要取得食品经营许可:

04
按照《食品经营许可管理办法》第十二条规定,申请食品经营许可,应当向申请人所在地县级以上市场监管或行政审批部门提交下列材料:
1.食品经营许可申请书;
2.营业执照或其他主体资格证明文件;
3.经营者的身份证原件及复印件;
4.经营者及从业人员健康证明(如下);
5.食品安全管理人员身份证复印件及培训证明资料;
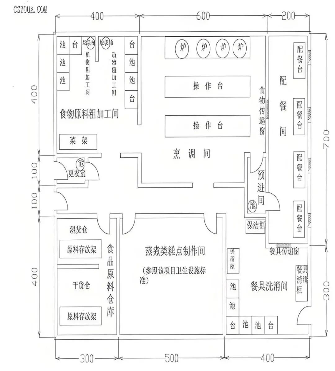
6.经营场所周边环境图、平面布局图(如下);

7.食品安全自查、从业人员健康管理、进货查验记录、食品安全事故处置等保证食品安全的规章制度。
05
0
1
整理好申请资料后,可以选择网上提交申请或前往相关部门窗口提交。
0
2
提交申请后,等待审批。审批通过后,相关部门会安排人员前往经营场所进行现场核查。
0
3
现场核查合格后,领取食品经营许可证,领取方式为线下窗口办理,记得带上相关证件和资料哦。
06
1、食品经营许可证变更
食品经营许可证上载明的信息如果发生变化,应该30个工作日内向当地市场监管部门申请变更。
经营地址变更的,需要注销新办。
2、食品经营许可证续期
食品经营许可证有效期满需要继续经营的,应在到期前的30个工作日办理续期手续。续期时应提交《食品经营许可延续申请表》,经营条件发生变化的,还应提交新的平面布局图和操作流程等。
3、食品经营许可证遗失补办
食品经营许可证许可证遗失、损坏的,应当及时向当地市场监管部门申请补办,补办时提交《食品经营许可证补办申请书》、书面遗失声明或者受损坏的食品经营许可证。
4、食品经营许可证注销
企业不再继续经营的,应当及时向当地市场监管部门办理注销手续,提交《食品经营许可注销申请书》及食品经营许可证正、副本的纸质原件。
以上就是办理食品经营许可证的相关问题指引,如果您对食品许可以及执照注册有任何疑问或需要帮助,欢迎随时咨询我们!不想耗时伤神注册的老板也可以找我们帮您全程办理!
工商服务
财税服务
资质办理
知识产权
创业不易,事无巨细
老板开公司前期注册、资质办理、后期记账报税都不是小事
查询公司名称能否使用
及时生成查名结果,准确度99%